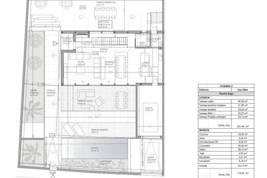
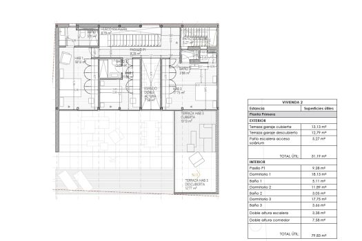
Beschrijving
Op slechts 193 meter van de hoofdstraat van Albir en 920 meter van het strand, biedt deze charmante woning het beste van twee werelden: centrale loopafstand en residentiële rust. Het pand is semi-aangrenzend maar voelt van binnen volledig vrijstaand aan, dankzij de indeling en oriëntatie. Met vier slaapkamers op de bovenverdieping en een kleinere kamer op de begane grond die perfect is voor gasten of een thuiskantoor, biedt het flexibele woonopties. De woonkamer met dubbele hoogte is ruim en vol licht, en opent naar verschillende terrassen en een privé zwembadgebied. Het dakterras geniet van een prachtig uitzicht op de koepel van de kerk van Altea, Sierra Bernia en Sierra Helada. Een privégarage, buitenparkeerruimte en inbegrepen meubels (lijst beschikbaar) maken het aanbod compleet. Een goed gelegen huis voor wie ruimte, privacy en een nabijheid van alle voorzieningen van Albir wil.





























